Rodinný dům - Debř, Mladá Boleslav (Rezervováno)
Rodinný dům v obci Debř - Mladá Boleslav o dispozici 3+1 a celkovou užitnou plochou 160 m²
3.590.000 Kč

Rodinný dům v obci Debř - Mladá Boleslav o dispozici 3+1 a celkovou užitnou plochou 160 m²

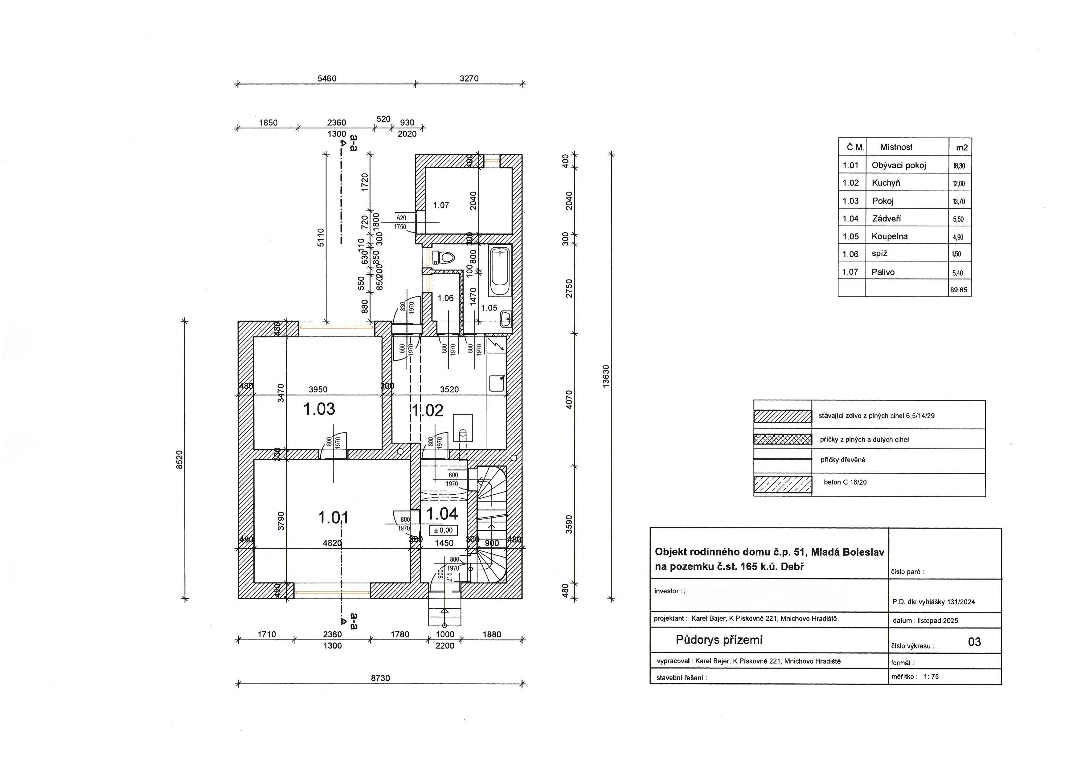
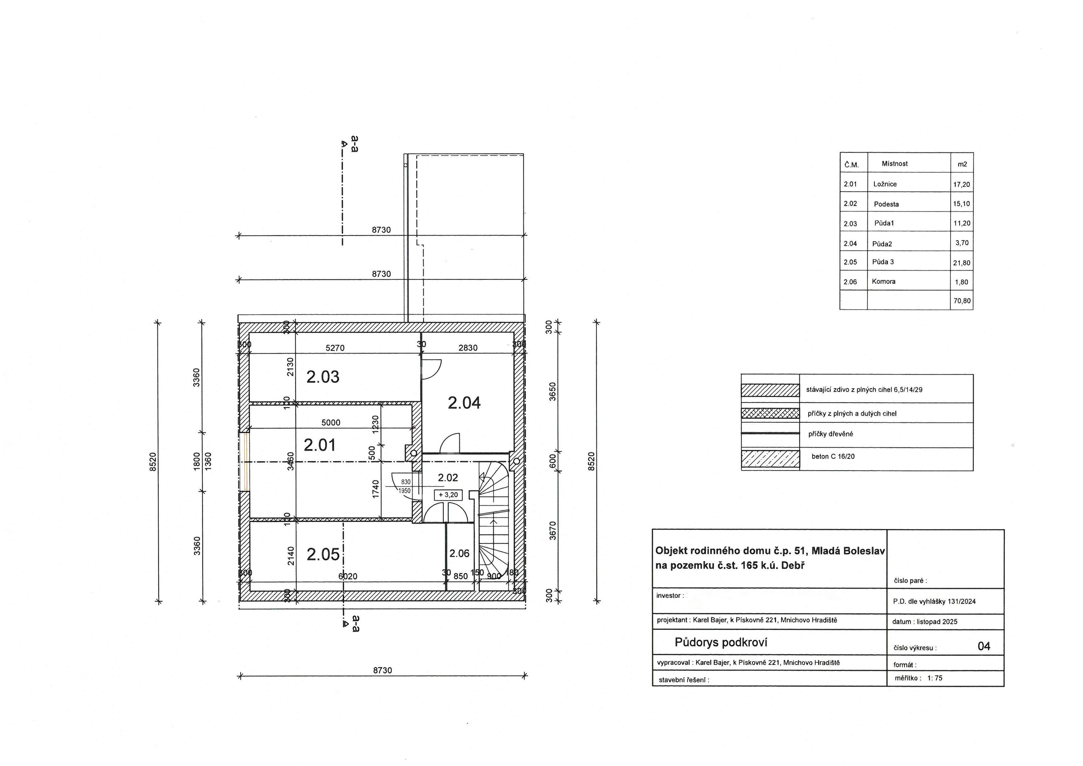
Nabízíme menší rodinný dům 3+1 v části Mladé Boleslavi - Debř, stojící na menším pozemku s přímým přístupem z veřejné komunikace. Dům se zastavěnou plochou 91 m² je vhodný k rekonstrukci, což umožňuje upravit dispozici i technický stav dle vlastních představ. Celková užitná plocha domu činí přibližně 160 m².
V přízemí domu se nachází dvě obytné místnosti, kuchyň, spíž a koupelna s toaletou. V horním podlaží je jeden pokoj a další půdní prostory, které lze využít pro vestavbu.
Součástí je také zvenku přístupný sklad na uhlí. Dům je částečně podsklepen. Přilehlý dvorek lze využít jako menší zahrádku nebo pro parkování auta.
Topení je řešeno etážovým systémem napojeným na zánovní kotel na uhlí a dřevo v kombinaci s elektrokotlem. K dispozici jsou veškeré základní inženýrské sítě: elektřina 230 V, obecní vodovod a kanalizace.
V blízkosti je dostupná základní občanská vybavenost – základní škola, mateřská škola, obchod s potravinami, restaurace, sokolovna, posilovna nebo zahradnictví. K dispozici je také MHD i vlaková zastávka.


Energetická náročnost:
G - Mimořádně nehospodárná
Stavba:
Cihlová, Před rekonstrukcí, 2 podlaží, 3 pokoje, Patrový typ objektu
Infrastruktura:
Vodovod, 230V, Vytápění na ústřední tuhá paliva, Ústřední elektrické vytápění, Elektrokotel, Kotel na tuhá paliva, Radiátory, Veřejná kanalizace
Plocha:
Užitná plocha 160 m²
Zastavěná plocha 91 m²
Plocha pozemku 139 m²
Lokalita:
Centrum obce

V případě vícero zájemců může rozhodnout licitace
Součástí Realitní kanceláře Drink jsem od již od jejího založení v roce 1996. Za posledních téměř třicet let v oboru jsem zprostředkoval dlouhou řadu prodejů nemovitostí. Stejně jako celý náš zkušený tým se zaměřuji na mladoboleslavský region, který důvěrně znám.